Sunday, May 10, 2026
45.0°F

$4.25 million available from state for school construction

by Royal Register EditorTed Escobar
| November 5, 2012 5:00 AM

photo

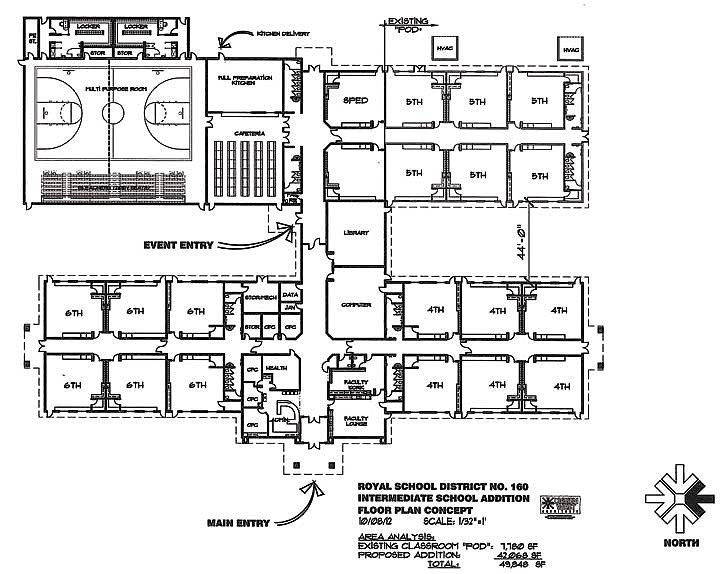
The addition planned at Royal High School will be constructed at the west end of the building. It will include four new classrooms and separate new restrooms for boys and girls.

Become a Subscriber!

You have read all of your free articles this month. Select a plan below to start your subscription today.

Already a subscriber? Login

Print & Digital
Includes home delivery and FREE digital access when you sign up with EZ Pay
  • $16.25 per month
Buy
Unlimited Digital Access
*Access via computer, tablet, or mobile device
  • $9.95 per month
Buy